GALLERY











Faltz Building Group
Our Philosophy: A Partnership Built on Excellence
The trust our clients place in us is our greatest achievement. We are a HomeAdvisor Screened & Approved contractor with Top Rated and Elite Service Professional awards, backed by a 100% recommendation ratefrom our clients. Homeowners frequently highlight our professionalism, communication, and willingness to go above and beyond to ensure complete satisfaction
Whether you are looking to build an entirely new luxury residence or transform your current space into a modern masterpiece, Faltz Building Group is your trusted partner. Let’s start the conversation about your dream home.
PROPERTY DETAIL
Key Details
Sold Price $849,000
Property Type Single Family Home
Sub Type Single Family Residence
Listing Status Sold
Purchase Type For Sale
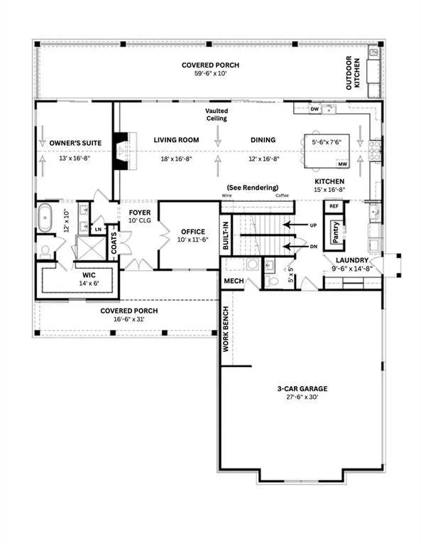
Square Footage 3, 000 sqft
Price per Sqft $283
Subdivision Governors Preserve
MLS Listing ID 7613337
Style Farmhouse
Bedrooms 4
Full Baths 3
Half Baths 1
HOA Fees $79/ann
Year Built 2025
Annual Tax Amount $1,555
Tax Year 2024
Lot Size 1.040 Acres
Property Sub-Type Single Family Residence
Location
State GA
County Cherokee
Area Governors Preserve
Rooms
Other Rooms None
Dining Room Butlers Pantry
Kitchen Eat-in Kitchen, Kitchen Island, Pantry Walk-In, Solid Surface Counters, View to Family Room
Building
Lot Description Back Yard, Other
Story Two
Foundation Concrete Perimeter, Slab
Sewer Public Sewer
Water Public
Structure Type Concrete,HardiPlank Type,Stone
Interior
Heating Central, Forced Air, Natural Gas
Cooling Ceiling Fan(s), Central Air
Flooring Carpet, Hardwood, Luxury Vinyl, Tile
Fireplaces Number 1
Fireplaces Type Gas Starter, Great Room
Equipment None
Laundry Laundry Room, Main Level, Mud Room, Sink
Exterior
Exterior Feature Rain Gutters
Parking Features Garage, Garage Faces Side
Garage Spaces 3.0
Fence None
Pool None
Community Features Clubhouse, Homeowners Assoc, Near Schools, Near Shopping, Park, Pickleball, Playground, Pool, Sidewalks, Tennis Court(s)
Utilities Available Cable Available, Electricity Available, Natural Gas Available, Phone Available, Sewer Available, Underground Utilities, Water Available
Waterfront Description None
View Y/N Yes
View Mountain(s), Trees/Woods, Other
Roof Type Shingle
Schools
Elementary Schools Avery
Middle Schools Creekland - Cherokee
High Schools Creekview
SIMILAR HOMES FOR SALE
Check for similar Single Family Homes at price around $849,000 in Canton,GA

Active
$839,000
542 Palm ST, Holly Springs, GA 30115
Listed by Beacham and Company3 Beds 3.5 Baths 2,100 SqFt
Active
$849,494
203 Belmont Park DR, Canton, GA 30115
Listed by Virtual Properties Realty. Biz2 Beds 2.5 Baths 2,632 SqFt
Open House
$774,990
714 Conley DR, Canton, GA 30115
Listed by HMS Real Estate LLC5 Beds 4.5 Baths 3,306 SqFt
CONTACT

